Maison isolée 6 Chambre(s)

Setúbal, Setúbal

550.000 €

Maison isolée 6 Chambre(s)
Envoyer la propriété à un ami
 
   
 
   
Savoir plus »  
 
Champs obligatoires *
Maison isolée 6 Chambre(s), Setúbal, Setúbal 550.000 € REF: BS626
6
279 m²
541 m²
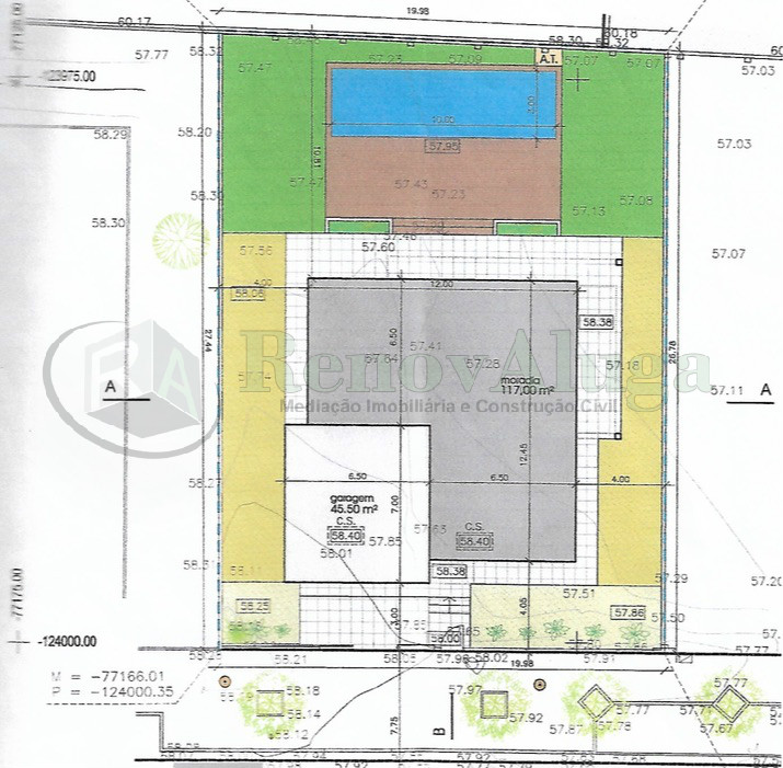
Magnifique maison individuelle de luxe à Azeitão avec 7 chambres et piscine en construction.

Situé dans un quartier haut de gamme de Brejos de Azeitão dans une nouvelle urbanisation, calme et surplombant la Serra da Arrábida, à proximité de l´école primaire, de la pharmacie et des services et à seulement 6 minutes de l´accès à A2, A33, Auto-Europa ainsi qu´à 10 minutes accès aux plages d´Arrábida et Sesimbra.

La villa comprend:

Étage 0:
-Chambre avec une superficie incroyable de 51,30 m2 avec cheminée et excellente exposition au soleil.
- Cuisine semi-équipée avec 20m2 et accès à l´extérieur.
-1 chambre ou bureau avec 12m2
- 1 salle de bain complète

1er étage
-1 Suite de 23,55 m2 avec accès à une terrasse de 45,50 m2.
- 4 chambres, toutes d´une superficie d´environ 12m2
- 2 Wc complets pour soutenir les chambres

- Terrain d´une superficie totale de 541m2 avec une piscine de 40m2 et un garage pour 2 véhicules d´une superficie de 45,50 m2.

-A des panneaux solaires, une cuisine semi-équipée et toutes les finitions de luxe avec la possibilité de choix par le client.

Réservez maintenant visitez et venez connaître votre nouvelle maison!
Type de propriété Maison isolée
Typologie 6 Chambres
Objectif Vente
Etat Neuf
Prix 550.000 €
Année de construction 2020
Pays Portugal
Département Setúbal
Ville Setúbal
Lieu Azeitão (São Lourenço e São Simão)
Zone Azeitão
Intéressé par cette propriété? Contactez-nous pour recevoir des informations supplémentaires ou planifier une visite.
 
   
 
 
 
 
Envoyer
Caractéristiques générales
Général
  •  
Pièces
Pièces Lieu Étage Murs Plafonds Commentaires
 
Environnement
  •  
Commodités
  •  
Domotique
  •  
Energies Renouvelables
  •  
Emplacement de la Propriété